自卸車液壓系統原理、組成及安裝--三、佳恒液壓缸安裝示意圖_湖北佳恒科技有限公司
外缸吊耳 A 備注 B1/W1">

液壓油缸,工(gong)程油缸,泵車(che)油缸,專用車(che)油缸制造商(shang)-湖北佳恒科(ke)技有限公司(si)

技術(shu)支持
您現在所(suǒ)在的位置:首(shǒu)頁 > 技術支持(chi) > 保養與使用(yòng)說明
自卸車(chē)液壓系統原(yuan)理、組成及安(an)裝--三、佳恒液(ye)壓缸安裝示(shi)意圖
 

A

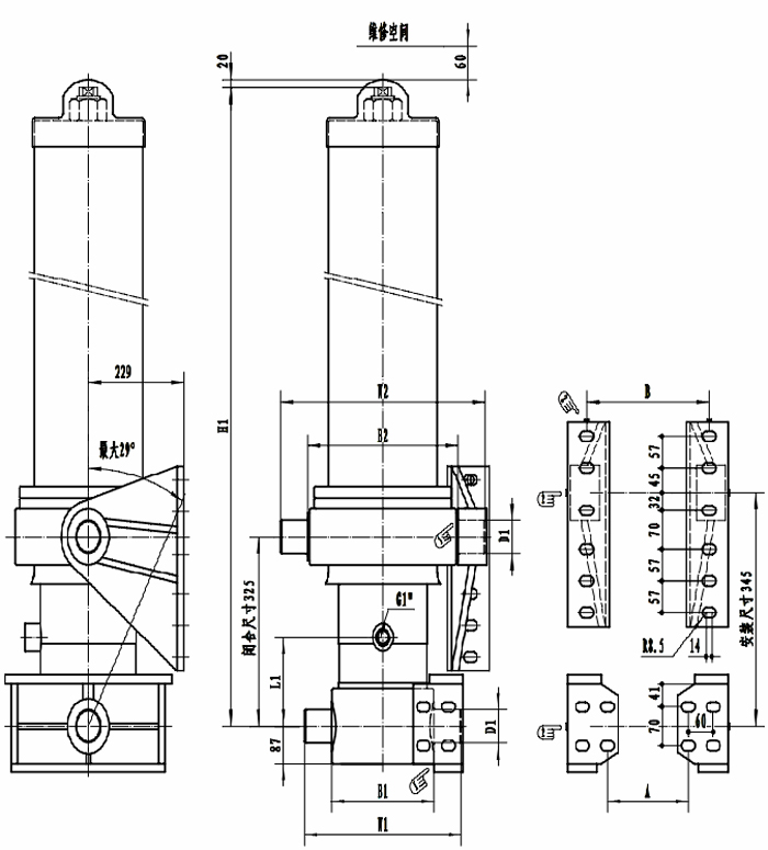
備注(zhù)

B1/W1

265/405

D1有(yǒu) 60/65mm兩(liang)種;

L1 160/190mm兩種;

H1為液壓缸(gang)封閉尺寸,對(dui)照上表具體(tǐ)型号。

 

 

 

 


所有(you)安裝螺栓及(jí)自鎖螺母的(de)規格為M16

墊圈規格(gé)為φ17×30mm

支座(zuò)與液壓缸之(zhi)間的最大間(jiān)隙為2mm

鎖緊支座螺(luó)栓後,焊接定(dìng)位闆。

245/375

195

230

270/410

220

外罩吊耳(er)

B

B2/W2

400

360/490

420


返(fan)回列表
湖北龙岩浩(hào)发机械制造(zao)有限责任公(gōng)司 | 版權所有(yǒu) 鄂ICP備17026771号-1 十堰(yàn)網站建設 | 制(zhì)作維護
地址(zhi):湖北省十堰(yàn)市高新區天(tian)馬大道387号 電(diàn)話:400-885-7266 0719-7590366 7590668
--相關友情(qing)鍊接--
十堰網(wǎng)站建設
三一(yi)重工
总(zong) 公 司急 速 版(ban)WAP 站H5 版无线端(duan)AI 智能3G 站4G 站5G 站(zhan)6G 站
·